Casa REF CA2197
Portal de São Francisco, Assis, São Paulo
R$ 385.000,00

CA2197- Casa para venda em fase de construção no Portal De São Francisco em Assis

Dormitórios

2 (sendo 1 suíte)

Banheiros

2

Sala(s)

2

Vagas

2

Área construída

77 m²

Terreno 

 (125) m²

Sobre o Imóvel

CA2197- Casa para venda  em fase de construção no Portal De São Francisco em Assis

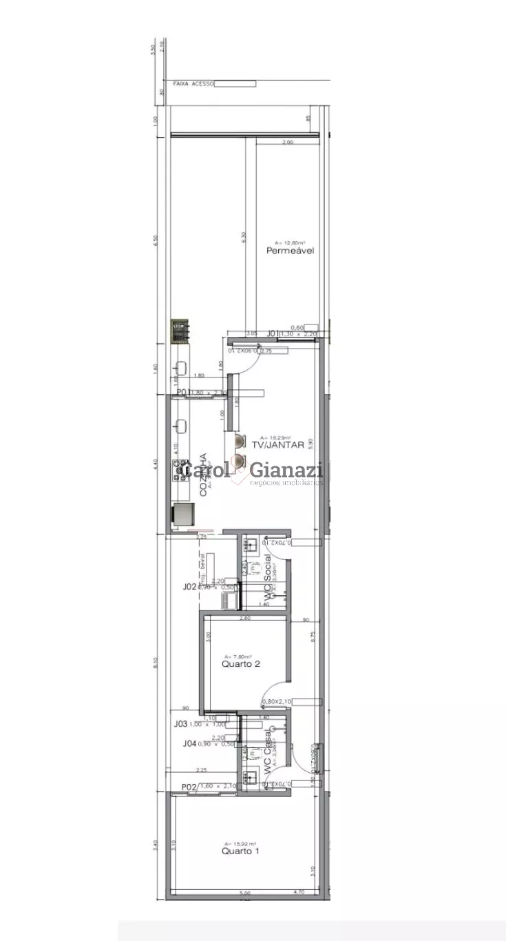
Apresentamos uma excelente oportunidade de adquirir uma casa em fase de construção no Portal De São Francisco, em Assis. Este imóvel residencial oferece conforto e modernidade, com um projeto bem planejado que inclui:

  • 2 dormitórios, sendo 1 suíte;
  • 2 salas espaçosas;
  • 2 vagas de garagem;
  • Terreno de 125,00 m²;
  • Área construída de 77,00 m².

A casa é construída com alvenaria de alta qualidade e apresenta as seguintes características adicionais:

  • Área de serviço;
  • Banheiro social;
  • Estilo de casa térrea;
  • Imóvel completamente cercado;
  • Forro de gesso elegante;
  • Laje robusta;
  • Pisos de cerâmica e porcelanato;
  • Sala de jantar integrada;
  • Sala de TV aconchegante.

Não perca a oportunidade de viver em um imóvel novo, com design moderno e estrutura de qualidade. Entre em contato conosco para mais informações e agende uma visita.

ref.: CA2197

Telefone para contato (18) 99178-7224

Link para contato: http://bit.ly/Imob-CarolGianazi

CRECI 33.184-J

Características do Imóvel
  • Alvenaria
  • Área de serviço
  • Banheiro social
  • Casa Térrea
  • Cercada
  • Forro de Gesso
  • Garagem
  • Imóvel Novo
  • Laje
  • Piso em Cerâmica / Porcelanato
  • Sala de Jantar
  • Sala de Tv
Localização

MARCO ANTONIO SOARES
CLIQUE E FALE POR WHATSAPP

Qual o melhor dia e horário pra você?

Leia o QR-Code para abrir no celular
QR Code

Imóveis similares

Conheça mais opções

Buscamos construir relações duradouras e de confiança com nossos clientes e colaboradores, entregando soluções imobiliárias dentro dos mais altos padrões de qualidade e profissionalismo.

 

Contatos

Endereço

Faça-nos uma visita

Fale Conosco Agora